Trilocale in vendita

Campobasso, Via Baldassarre Labanca - Colle Delle Api
€ 79.000
Prezzo aggiornato
3 locali 3 locali
75 Mq 75 Mq
1 bagno 1 bagno

Trilocale in vendita

Campobasso, Via Baldassarre Labanca - Colle Delle Api

Descrizione annuncio

APPARTAMENTO IN PICCOLA PALAZZINA.

Contattaci per ulteriori informazioni.

Via Labanca: In prossimità dei centri commerciali disponiamo di un appartamento in vendita che offre una soluzione abitativa pratica e funzionale.

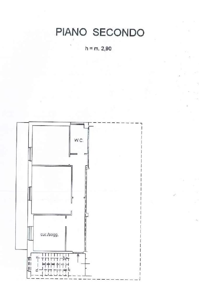
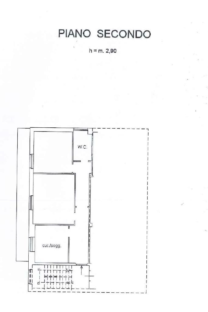
Situato al piano basso di un edificio costruito nel 1967, l'immobile si estende su una superficie di 75 mq.

L'appartamento è composto da tre locali ben distribuiti, tra cui due camere da letto accoglienti e un'ampia cucina ideale per chi ama cucinare in tranquillità. Il bagno è dotato di tutti i comfort necessari. Tutti gli ambienti si affacciano sul balcone che offre uno spazio esterno privato, perfetto per momenti di relax.

Questa soluzione abitativa è ideale per chi cerca un ambiente confortevole in una zona ben servita, con facile accesso ai principali servizi e collegamenti della città.

VISIONABILE TUTTI I GIORNI PREVIO AVVISO TELEFONICO. CONTATTARE IL SEGUENTE NUMERO 328 0253206 OPPURE INVIACI UN'E-MAIL A cb1a1. UN NOSTRO AGENTE SARA' PRONTO A RISPONDERE CON PROFESSIONALITA' E CORTESIA. L'immobile è postato anche su Facebook , cerca ''Tecnorete Campobasso'' e clicca MI PIACE.

Mostra tutto

Nelle vicinanze

Trasporto pubblico Trasporto pubblico
Campobasso
Campobasso
1,8 Km
Labanca
Labanca
30 m
Tiro a Segno
Tiro a Segno
160 m
San Michele
San Michele
1,3 Km
Duca d’Aosta
Duca d’Aosta
2,6 Km
Ricariche auto elettriche Ricariche auto elettriche
Conad Ipermercato - Centro del Molise
460 m
Campobasso Einaudi | EnelX
480 m
Campobasso Insorti d'Ungheria | EnelX
1,3 Km
Campobasso piazza Molise | EnelX
1,5 Km
Campobasso Castello | EnelX
1,6 Km
Scuole Scuole
Scuola Infanzia CEP Nord
420 m
Istituto Comprensivo Statale Leopoldo Montini
600 m
III Circolo Didattico “Giovanni Paolo II”
640 m
Scuola Infanzia CEP Sud
710 m
Scuole
790 m
Farmacia Farmacia
Comunale 2
360 m
Parafarmacia Conad
480 m
Castiglione
1,2 Km
San Giorgio
1,5 Km
Molise
1,6 Km
Ospedali Ospedali
Casa di Cura Villa Maria
2,4 Km
Supermercati Supermercati
Conad
450 m
Penny Market
690 m
L'Oasi
1,3 Km
Granrisparmio
1,5 Km
Famila
1,6 Km
Negozi Negozi
It Store Outlet
2,0 Km
Bar Bar
Bar
1,8 Km
Lupacchioli
1,8 Km
Mama's
2,3 Km
Piccola Oasi
2,4 Km
Discoteca Impero
2,7 Km
Ristoranti Ristoranti
Moren's
720 m
Charly
770 m
Bella 'mbriana
950 m
Il Cavalluccio Marino
980 m
La Grande Muraglia
1,0 Km
Mostra tutto

Caratteristiche

Rif.:
61129174
Piano:
2 di 3 (Piano basso)
Posti auto:
1
Balconi:
1
Camere da letto:
2
Arredamento:
Assente
Mostra tutto
Prezzo Prezzo
€ 79.000
Rata mutuo Rata mutuo
€ 372 / mese
Spese annue Spese annue
€ 300
Proponi il tuo prezzoProponi il tuo prezzo

Classe Energetica

G
G
G
G
G
G
G
G
G
EP globale non rinnovabile:
108.38 kW h/m² anno
Anno di costruzione:
1967
Riscaldamento:
Autonomo
Tipo impianto:
A radiatori
Tipo alimentazione:
Metano

Prezzo ridotto di €1 (12%%)

Ti interessa visionare l'immobile?

Fissa un appuntamento  Fissa un appuntamento

Richiedi informazioni

Clicca su Leggi per aprire l'informativa
* Questi campi sono obbligatori

Calcola il tuo mutuo

Semplice e senza impegno
Anticipo

( % )
Mutuo

( % )

pochi semplici passi

inserisci i tuoi dati
Questionario completato
Grazie per aver richiesto un appuntamento senza impegno con un nostro Consulente del Credito e Assicurativo.

Hai inserito correttamente tutti i dati necessari e a breve riceverai una e-mail con un link da convalidare per inviare i tuoi dati.
Affiliato
Molise Group Srl
Viale XXIV Maggio, 129 86100 Campobasso (CB)

Il nostro staff


  • Benito Benvenuto
    Affiliato

  • Christian Cristofano
    Collaboratore

  • Arianna Adduocchio
    Responsabile

  • Marco De Donno
    Collaboratore

  • Emanuela Marino'
    Collaboratrice

  • Marco Sciarra
    Collaboratore
Viale XXIV Maggio, 129 86100 Campobasso (CB)
Zona: Campobasso-XXIV Maggio
Mostra su mappa
Affiliato
Molise Group Srl
Viale XXIV Maggio, 129 86100 Campobasso (CB)

2026 Tecnocasa Franchising S.p.A. - P. IVA 08365160152 - Via Monte Bianco 60/A 20089 Rozzano (MI). Ogni agenzia ha un proprio titolare ed è autonoma. Privacy policy | Policy utilizzo | Cookie policy